Thiết kế tương phản, độc đáo từ chất liệu gỗ

(PLVN) - Thiết kế này thuộc khu nghỉ dưỡng Pistohiekka tại Phần Lan. Thiết kế bao gồm nhà hàng và phòng xông hơi khô ven hồ, với các tòa nhà được thiết kế bằng gỗ đen bên ngoài với nội thất bên trong là gỗ tự nhiên tạo nên sự tương phản, độc đáo.

 Thiết kế tương phản, độc đáo từ chất liệu gỗ

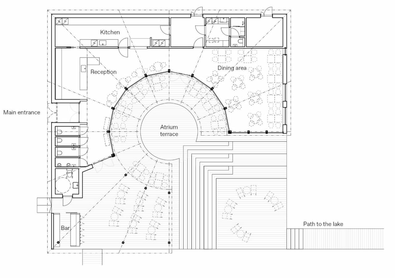
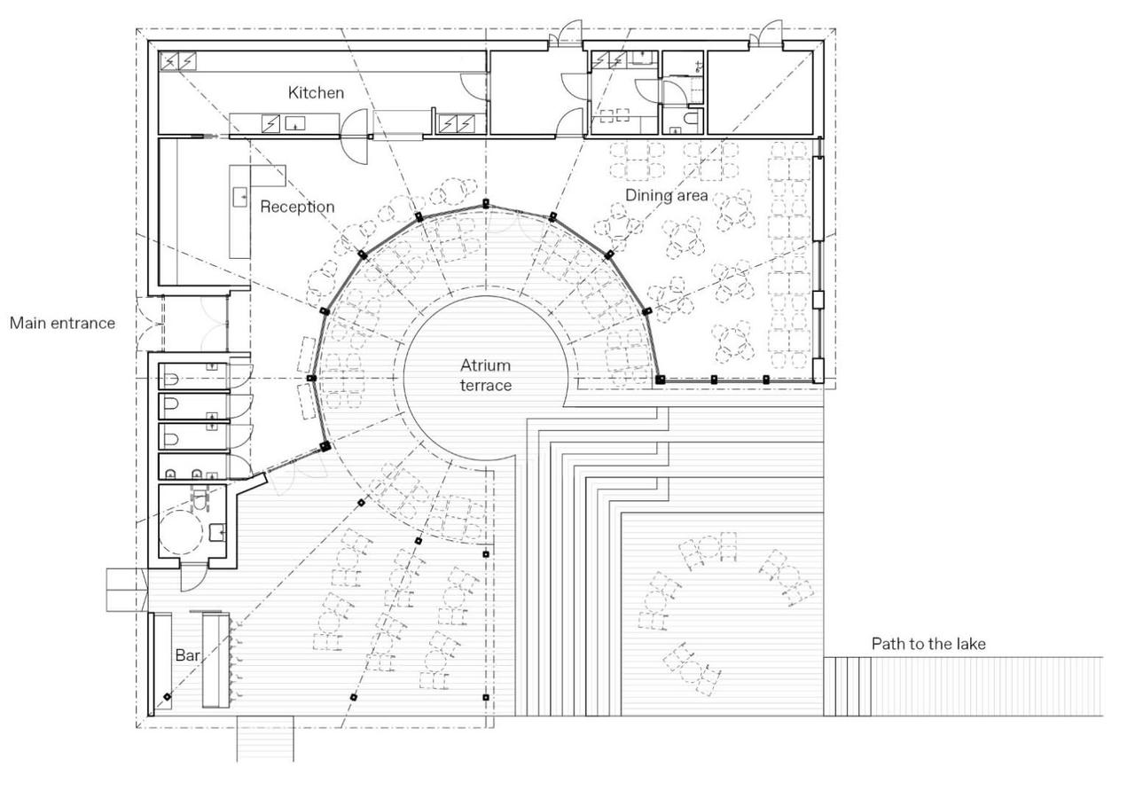
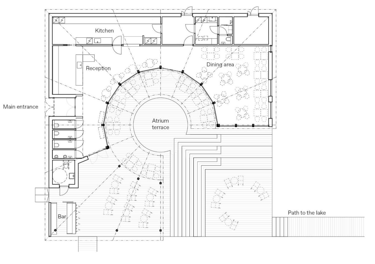
Nhà hàng và phòng xông hơi khô ven hồ có thẩm mỹ thiết kế mạnh mẽ dựa trên không gian nhà hàng và phòng xông hơi khô xoắn ốc xung quanh.

 Thiết kế tương phản, độc đáo từ chất liệu gỗ

Các tòa nhà nằm giữa những tán cây, nơi chúng hòa quyện vào khung cảnh tạo nên cảnh tượng nổi bật với bề ngoài tối màu.

 Thiết kế tương phản, độc đáo từ chất liệu gỗ

Các khu giải trí ngoài trời bậc thang tạo ra nhiều địa điểm khác nhau để thưởng ngoạn phong cảnh ven hồ.

 Thiết kế tương phản, độc đáo từ chất liệu gỗ

Ngoại thất tối màu tương phản với nội thất bằng gỗ sáng màu hấp dẫn và ấm áp.

 Thiết kế tương phản, độc đáo từ chất liệu gỗ

Sân trong uốn cong của nhà hàng tạo ra điểm nhìn cả trong và ngoài tòa nhà.

 Thiết kế tương phản, độc đáo từ chất liệu gỗ

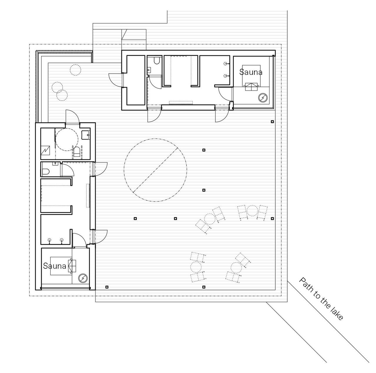
Ngoại thất phòng xông hơi khô có mái che có một lỗ tròn độc đáo trên mái nhà, tạo ra một liên kết giữa các tòa nhà.

 Thiết kế tương phản, độc đáo từ chất liệu gỗ

Bên trong phòng xông hơi khô, các cửa sổ nằm ngang tạo khung cảnh hoàn hảo.

Dưới đây là sơ đồ cho từng tòa nhà:

 Thiết kế tương phản, độc đáo từ chất liệu gỗ

 Thiết kế tương phản, độc đáo từ chất liệu gỗ

 Thiết kế tương phản, độc đáo từ chất liệu gỗ

Thanh Hà (Theo Contempovist)