Nhà ống Sài Gòn có giếng trời đẹp như kính vạn hoa

(PLO) - Ngôi nhà cũ 3 tầng xây cách đây 20 năm được cải tạo, đem lại niềm hạnh phúc cho cặp vợ chồng và 2 con nhỏ.

Nhà ống Sài Gòn có giếng trời đẹp như kính vạn hoa
Ngôi nhà 64 m2 nằm trong hẻm của Sài Gòn được xây dựng từ những năm 1990. Gia đình đang sống ở đây là một cặp vợ chồng và hai con gái nhỏ. Ngôi nhà được cải tạo với mặt tiền màu trắng hiện đại, đơn giản hơn nhưng vẫn có sự thu hút riêng
Nhà ống Sài Gòn có giếng trời đẹp như kính vạn hoa
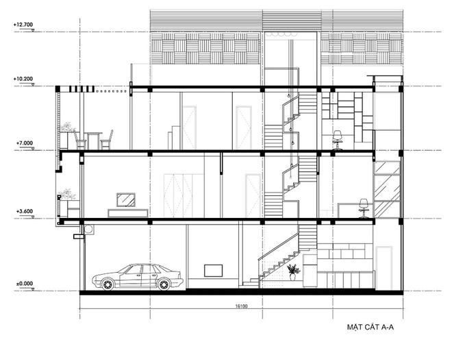
Điểm yếu lớn nhất của không gian cũ là giếng trời lợp tôn nên nóng và thiếu sáng. Cầu thang quá rộng, phòng ngủ phía sau nhỏ, thiếu sáng
Nhà ống Sài Gòn có giếng trời đẹp như kính vạn hoa
Nhóm KTS Giang Đoàn, Hương Nguyễn, Hồ Quốc Hùng (G+ architects) quyết định bỏ cầu thang cũ chiếm nhiều diện tích. Thay vào đó là cầu thang mới dạng khung thép không can thiệp vào kết cấu nhà. Gạch bông gió cùng kính màu được sử dụng để tạo điểm nhấn cho giếng trời. Phía trên khung gạch bông là lớp kính che mưa
Nhà ống Sài Gòn có giếng trời đẹp như kính vạn hoa
Tầng một là không gian mở hoàn toàn từ ngoài cửa, phòng khách, bếp, bàn ăn. Kệ trang trí được sử dụng để ngăn cách khu vực sinh hoạt chung với chỗ để xe
Nhà ống Sài Gòn có giếng trời đẹp như kính vạn hoa
Vợ chồng chủ nhà thích tông trầm nên trong nhà có một mảng tường xuyên suốt tối màu. Để nhà có cảm giác tươi vui, các kiến trúc sư sử dụng thêm gam trắng, nội thất màu gỗ sáng
Nhà ống Sài Gòn có giếng trời đẹp như kính vạn hoa
Trên mảng tường sẫm treo những bức ảnh đen trắng kỷ niệm của gia đình. Gầm cầu thang được tận dụng làm ngăn tủ, chỗ cất đồ chơi cho trẻ nhỏ
Nhà ống Sài Gòn có giếng trời đẹp như kính vạn hoa
Những chiếc ghế lệch màu, mảng tường ốp gạch bông đen trắng cùng ảnh kỷ niệm giúp khu vực bàn ăn ấm áp hơn
Nhà ống Sài Gòn có giếng trời đẹp như kính vạn hoa
Diện tích phòng ngủ được mở rộng hơn với góc nhìn ra bên ngoài và giếng trời
Nhà ống Sài Gòn có giếng trời đẹp như kính vạn hoa
Nhà có hai bé gái nên bố mẹ dành một không gian màu hồng-trắng với khung cửa kính nhìn ra mảng gạch bông sinh động
Nhà ống Sài Gòn có giếng trời đẹp như kính vạn hoa
Không gian yêu thích nhất của hai bé chính là tầng 3. Đây vốn là khu vực thư viện của bố mẹ với các kệ sách, trang trí sát tường

 

Nhà ống Sài Gòn có giếng trời đẹp như kính vạn hoa
Nhờ vậy, mặt sàn khá rộng cũng là sân chơi trong nhà cho trẻ nhỏ. Hai cô bé có thể đạp xe từ ban công vào tới thư viện trong những ngày không thể ra ngoài đường
Nhà ống Sài Gòn có giếng trời đẹp như kính vạn hoa
Vào ngày nắng đẹp, các thành viên trong nhà cũng có thể ra ngoài trời cảm nhận nắng gió
Nhà ống Sài Gòn có giếng trời đẹp như kính vạn hoa
Nhà ống Sài Gòn có giếng trời đẹp như kính vạn hoa
Nhà ống Sài Gòn có giếng trời đẹp như kính vạn hoa
Theo VnExpress