Nhà cấp 4 chỉ sơn độc màu trắng và dùng gỗ hỏng gây 'sốt'
Chỉ sử dụng duy nhất màu sơn trắng kết hợp với đồ nội thất từ gỗ tái chế, ngôi nhà cấp 4 trong bài vẫn khiến người xem không ngừng trầm trồ.
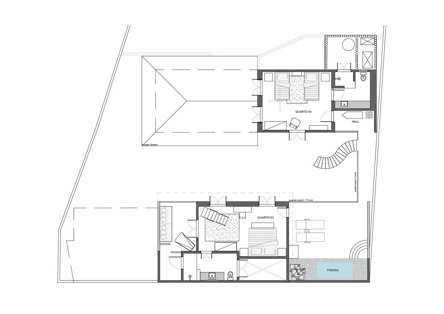
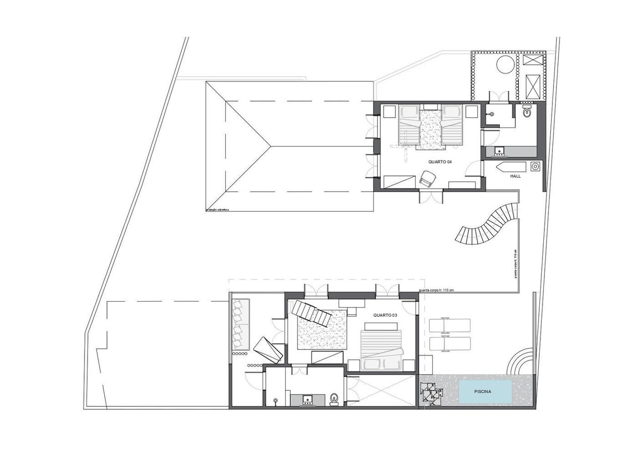
Một ngôi nhà cấp 4 ở Trancoso (Bahia, Brazil) vừa hoàn thành mới đây đang nhận được sự tán dương của nhiều người trên trang Archi Daily vì lối thiết kế đơn giản, mộc mạc lại vô cùng đẹp mắt và nhiều công năng.
![]() |
| |
Toàn bộ ngôi nhà chỉ sử dụng màu sơn trắng, điểm nhấn đến từ phần mái ngói và các cột kèo bằng gỗ tái chế.
![]() |
Theo Tiền phong
















