Mê mẩn kiến trúc độc đáo của ngôi nhà như một khu nghỉ dưỡng thu nhỏ
Các kiến trúc sư chỉ mất 3 tháng từ khi lên ý tưởng đến khi hiện thực hóa ngôi nhà tựa như một khu nghỉ dưỡng này - nơi con người có thể sống và cảm nhận thiên nhiên một cách trọn vẹn.
Với tổng diện tích 181m2, ngôi nhà có tên gọi Lam House được ví như một khu nghỉ dưỡng thu nhỏ ngay giữa lòng TP.HCM, nơi mang tới cho chủ nhân của nó sự bình yên thư thái sau ngày dài mệt nhọc.
![]() |
Mặt tiền của ngôi nhà được bao phủ bởi cây xanh và hòa mình với thiên nhiên tươi đẹp. (Ảnh: Nam Bùi)
Trải qua thời gian dài phải ở nhà do đại dịch COVID-19, một gia đình 3 người tại TP.HCM đã quyết định thay áo mới cho không gian sống của mình nhằm thoát khỏi sự nhàm chán của căn hộ nơi trung tâm thành phố. Chủ nhà đã liên hệ với cô Phạm Mỹ An - kiến trúc sư chính của MM++ architects để lên kế hoạch tạo ra một "ngôi nhà nghỉ dưỡng" với không gian thoáng đãng và sân vườn xanh mát. Và chỉ mất 3 tháng từ khi lên ý tưởng đến khi hiện thực hóa, đầu năm 2022, ngôi nhà đã được hoàn thành, nơi con người có thể sống và cảm nhận thiên nhiên một cách trọn vẹn.
Khi nhìn vào sơ đồ mặt bằng của căn hộ với kiểu thiết kế điển hình, KTS. Phạm Mỹ An đã rất băn khoăn để tìm cách biến nơi đây thành một khu nghỉ dưỡng xanh với vẻ ngoài mới lạ hơn.
Dựa trên các cấu trúc sẵn có, KTS. Phạm Mỹ An quyết định tạo ra một mặt bằng thoáng hơn bằng cách mở rộng không gian và loại bỏ những bức tường không cần thiết trong nhà. Kiến trúc sư đã tái tạo một không gian mở, nơi tất cả các chi tiết thiết kế không cần thiết được loại bỏ, để lại một sự đơn giản nhưng thanh lịch với bếp, vườn và tầm nhìn rộng ra bầu trời xanh thông qua khoảng trần nhà bằng kính được bố trí dọc theo hành lang.
![]() |
Căn bếp được thiết kế mở giúp dễ dàng nhìn ngắm cảnh quan và đón ánh sáng tự nhiên. (Ảnh: Nam Bùi)
Mặt tiền của ngôi nhà được bao phủ bởi cây xanh và hòa mình với thiên nhiên tươi đẹp. Từ khu vực sinh hoạt có thể nhìn toàn cảnh ra khu vườn xanh tươi ở sân trước. Phòng khách trang nhã thông với bếp, nơi chủ nhà có thể chuẩn bị món ăn yêu thích, tận hưởng vẻ đẹp của ánh sáng và cây xanh qua cửa kính trong suốt từ trần nhà và cửa sổ kính trên sân thượng.
![]() |
Phần cửa kính trong suốt giúp con người tận hưởng vẻ đẹp của ánh sáng và cây xanh. (Ảnh: Nam Bùi)
Tầng thượng rộng mở dọc theo hành lang đón ánh sáng tự nhiên vào tất cả các khu vực của ngôi nhà gồm phòng khách, phòng ngủ ở vị trí trung tâm và phòng ngủ chính. Bên trong phòng khách là một hàng cây cảnh nhỏ, vừa có tác dụng trang trí vừa tạo cảm giác gần gũi với thiên nhiên.
![]() |
Một góc nhỏ trong phòng ngủ, nơi chủ nhân có thể thư giãn và ngắm cảnh. (Ảnh: Nam Bùi)
![]() |
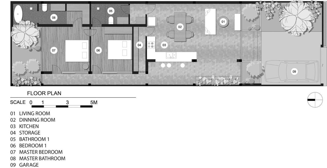
Bản thiết kế của ngôi nhà
Phòng vệ sinh được thiết kế một cửa sổ từ tầng thượng để lấy ánh sáng tự nhiên cũng như tạo sự thông thoáng bên trong ngôi nhà.
![]() |
Phòng ngủ hòa quyện với thiên nhiên xanh mát. (Ảnh: Nam Bùi)
Khoảng sân sau thơ mộng gợi liên tưởng đến một căn phòng nghỉ dưỡng với khoảng vườn nhỏ thanh bình, nơi chủ nhân có thể tận hưởng những tán cây xanh mát. Phòng ngủ bên cạnh sân cũng được thiết kế tối giản với điểm nhấn là vẻ đẹp của thiên nhiên./.





