“Chạm nóc” trước 45 ngày, Ecoba cam kết về tiến độ và chất lượng thi công tòa CT2 Dự án Iris Garden
(PLVN) -Mười tháng, khoảng thời gian đủ đầy để chúng ta chờ đón sự kiện cất nóc tòa CT2 Dự án Iris Garden, tiếp nối thành công của hai tòa CT3 (cất nóc ngày 28/11/2018) và CT4 (cất nóc ngày 26/12/2018) trước đó, đánh dấu cột mốc thi công “thần tốc” của dự án, song vẫn đảm bảo các tiêu chuẩn khắt khe về chất lượng thi công công trình.
Sáng 24/4, Công ty cổ phần đầu tư xây dựng Nhuệ Giang, đã phối hợp với Nhà thầu xây dựng Ecoba, Đơn vị phát triển dự án Vimefulland, Đơn vị quản lý và giám sát thi công Artelia (Pháp) và Công ty Cổ phần bất động sản Belleville Hà Nội đơn vị phân phối độc quyền, đã tổ chức lễ cất nóc tòa CT2 Dự án Iris Garden tại số 30, Trần Hữu Dực – K2, Nam Từ Liêm, Hà Nội.
Ông Lương Xuân Dương cho biết thêm: “Ecoba đã thực hiện thi công rất nhiều dự án trên địa bàn Hà Nội, nhưng có lẽ, đây là 1 trong số ít những dự án, mà chúng tôi thấy được sự sát sao từ phía chủ đầu tư, chính sự sát sao đó, là yếu tố quan trọng và quyết định để chúng tôi có được thành quả ngoạn mục như ngày hôm nay”.
Phát biểu tại buổi lễ, ông Vũ Tuấn Cường đại diện cho chủ đầu tư dự án cho biết: “Sau 10 tháng thi công, hôm nay chúng tôi vui mừng tổ chức lễ cất nóc tòa nhà CT2 tiếp tục vượt tiến độ đã cam kết với khách hàng, tuân thủ nghiêm ngặt các quy định, tiêu chuẩn và an toàn trong xây dựng. Chúng tôi và các nhà thầu sẽ tiếp tục và nhanh chóng hoàn thiện dự án, đảm bảo chất lượng, sẵn sàng đón các cư dân về sinh sống trong thời gian sớm nhất”.
Trong phần phát biểu của mình, ông Vũ Tuấn Cường cũng bày tỏ sự trân trọng và cảm ơn sâu sắc đến chính quyền địa phương, các đối tác tài chính, Đơn vị phát triển Dự án Vimefulland, Nhà thầu Ecoba, Đơn vị quản lý và giám sát thi công Artelia (Pháp) và Công ty Cổ phần bất động sản Belleville Hà Nội đơn vị phân phối độc quyền dự án và khách hàng mua nhà.
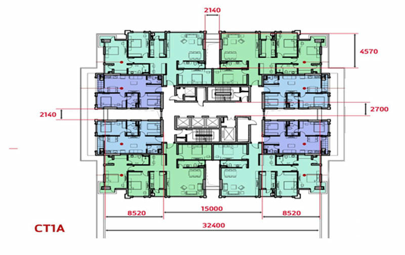
Trong đó, 02 tầng hầm của công trình được bố trí để xe cho cư dân và các hạ tầng kỹ thuật. Tầng 1, được xây dựng với chiều cao 4.5m, một phần diện tích sàn được sử dụng để làm không gian sảnh cho khối dịch vụ, không gian sảnh cho cư dân tòa nhà, không gian sảnh dành cho giao thông tòa nhà, còn lại là khoảng không gian dành cho khối dịch vụ, thương mại. Tầng 2, được xây dựng với chiều cao 3.9m, dành riêng cho khối dịch vụ thương mại công cộng, khối văn phòng cho thuê, phần phía trên sát sàn tầng kỹ thuật, làm không gian kỹ thuật tòa nhà.
Từ tầng 3 đến tầng 25 của tòa nhà có chiều cao tầng 3,3m, bố trí các căn hộ với hệ thống thông gió tự nhiên với chiều rộng 2,14m được thiết kế tiếp nối giữa 2 căn góc của tòa nhà, giúp hấp thụ tối đa ánh sáng, gió tự nhiên vào sảnh chờ, tạo nên một không gian sáng, thông thoáng, rộng rãi không gây cảm giác bí bách, khó chịu khi di chuyển trong cùng tầng, đây là điểm khác biệt mà không phải dự án nào cũng có được. Dọc theo lối hành lang, khu vực sảnh chờ thang máy thông thoáng với độ rộng lên tới 2,7m.
Cùng là chung cư cao tầng gần khu vực, nếu như tòa nhà chung cư của các chủ đầu tư khác, mật độ xây dựng căn hộ khoảng 16 căn/sàn/tầng, thì tại tòa nhà CT2, CT1A, CT1B của Dự án Iris Garden có mật độ xây dựng chỉ 8 căn/sàn/tầng, với diện tích căn 2 phòng ngủ là 60,7m2 và căn 3 phòng ngủ là 131,8m2. Với mật độ xây dựng thấp, sảnh chờ thang máy rộng là nhân tố trọng yếu, tránh tình trạng quá tải và thời gian chờ đợi thang máy, khi cư dân được sử dụng hệ thống giao thông đứng với 3 thang máy mang thương hiệu Schindler Thụy Sỹ cho một sàn/trên một tòa nhà và vận tốc thang máy 3m/giây.
Chưa hết, việc tối ưu trong thiết kế còn được thể hiện từ cửa căn hộ đến khu vực thang máy rất gần, tối đa cũng chỉ là 9m để đến thang máy gần nhất, đảm bảo cư dân khi di chuyển giao thông theo trục ngang được nhanh chóng, rút ngắn khoảng cách và thời gian di chuyển từ căn hộ đến thang máy.
Sự kết hợp tinh xảo giữa các họa tiết hoa sắt mềm mại, cầu kỳ, được phủ một lớp màu đen, cùng với điểm nhấn nhá sắc vàng hoàng gia trên nền vách kính trong suốt với khung cửa có chiều rộng lên đến 2,6m, chiều cao 4m. Hệ thống gờ phào, hoa văn đăng đối, sang trọng đã tạo nên một bức tranh khu phố nhộn nhịp đẹp lung linh bên ánh đèn khu cảnh quan cây xanh dự án Iris Garden.
Quang Minh




