Căn nhà 7x20m ở quê với chi phí 200 triệu đồng
(PLVN) - Mong muốn của gia chủ là xây 4 phòng ngủ có gác lửng, một phòng ăn, sân để xe hơi. Hi vọng với tư vấn thiết kế của kiến trúc sư sẽ đáp ứng được tiện nghi cũng như nhu cầu sinh hoạt của gia đình.
Kính chào chuyên mục và KTS tư vấn,
Tôi hiện có miếng đất ở quê với diện tích 7 x 50m nhưng chỉ muốn xây 7 x 20m. Tôi nhờ KTS tư vấn và cho xin bảng thiết kế mẫu nhà cấp 4 với diện tích trên.
Mong muốn của tôi là xây 4 phòng ngủ có gác lửng, có phòng ăn, có sân để xe hơi, bên hông có chừa 1 mét để làm lối đi xuống cửa phía sau nhà.
Rất mong nhận được phản hồi của chuyên mục
Kiến trúc sư tư vấn:
Dựa theo những thông tin mà bạn cung cấp và yêu cầu tư vấn thiết kế chúng tôi xin đưa ra phương án mặt bằng tư vấn thiết kế như sau:
Mặt bằng nội thất tầng 1.
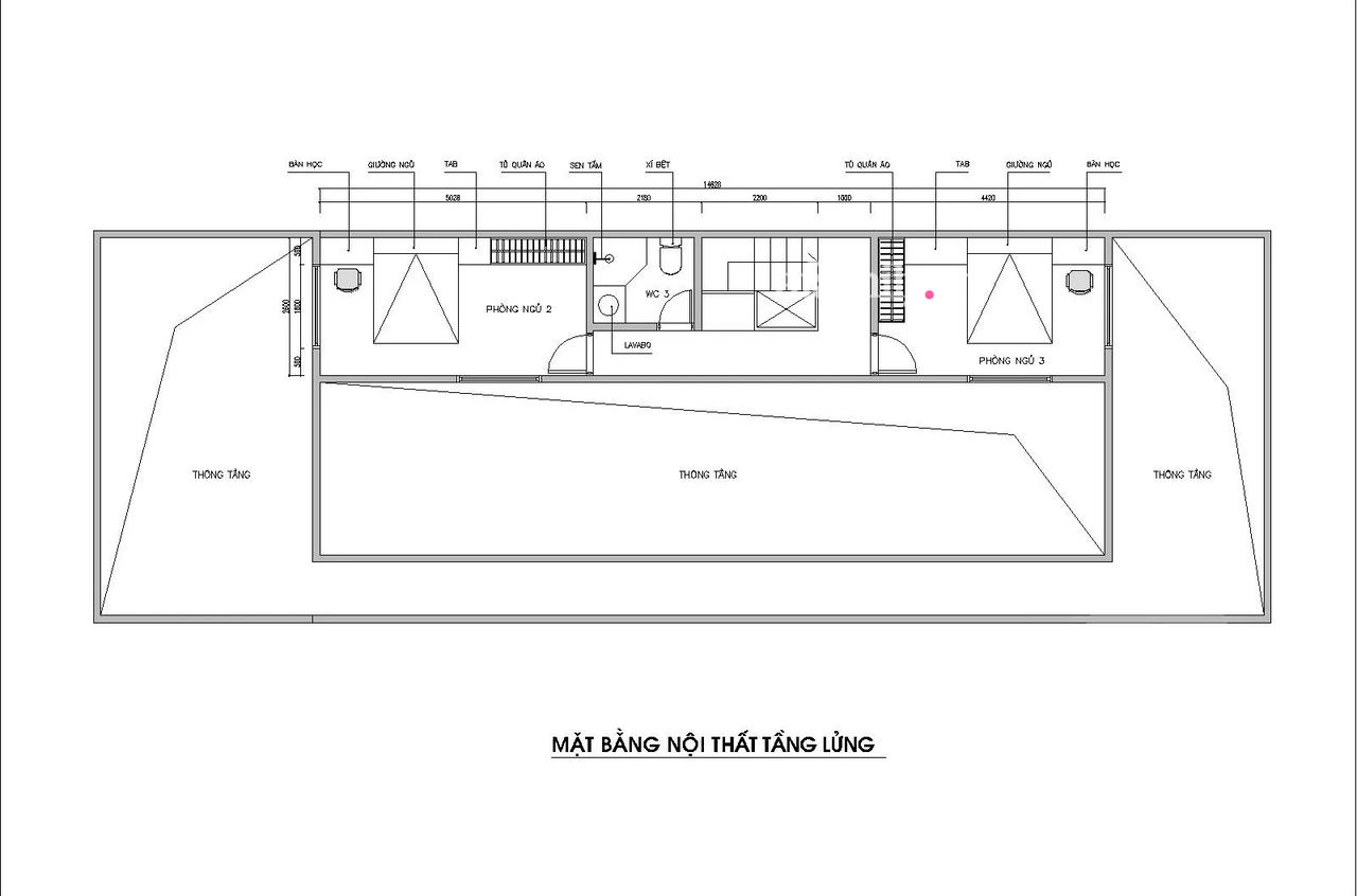
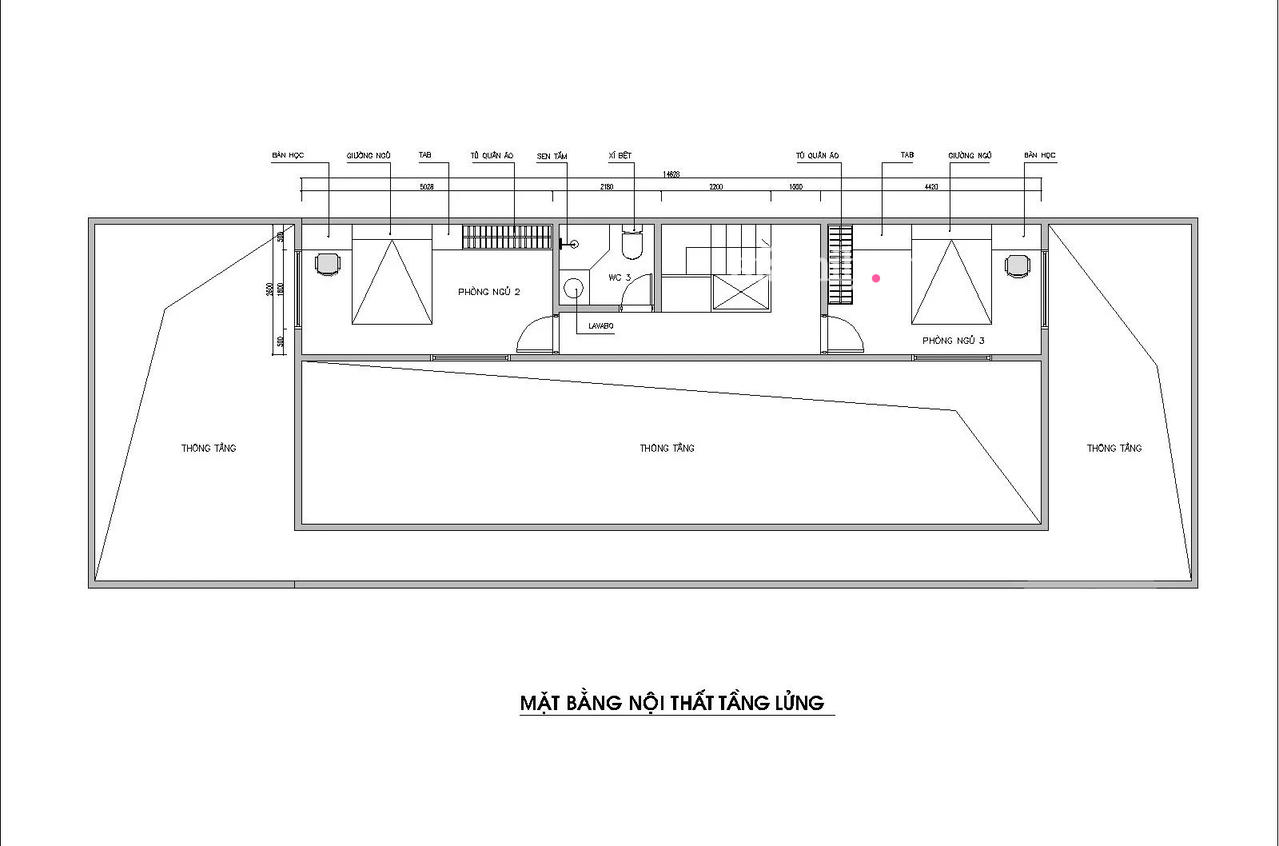
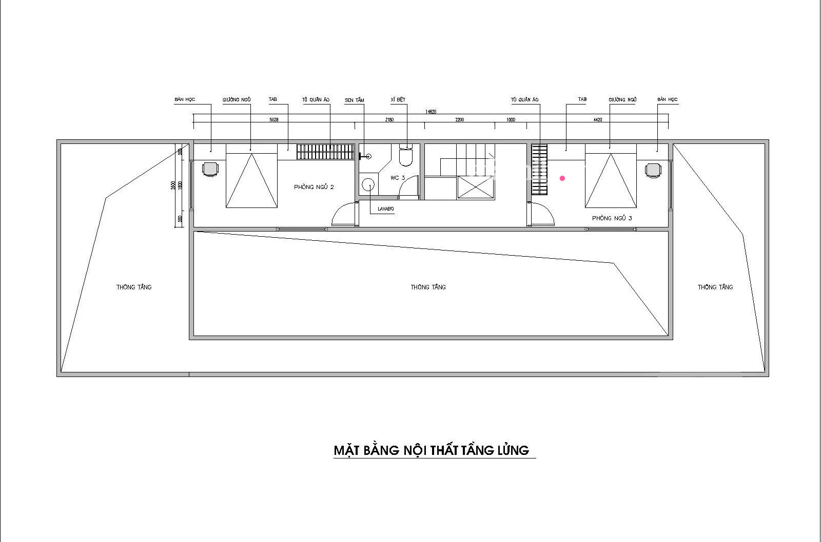
Mặt bằng nội thất tầng lửng.
Căn nhà cấp 4 kèm tầng lửng diện tích 7 x 20m với 4 phòng ngủ tiện nghi hẳn là ngôi nhà trong mơ của những cặp vợ chồng mới cưới, mong muốn có một căn nhà đẹp giá rẻ làm nơi sinh sống, an cư lập nghiệp lâu dài.
Diện tích không quá nhỏ như những căn nhà ống xô bồ nơi phố thị, cũng không hẳn là căn nhà một mặt sàn của chung cư đông đúc, mong muốn của gia chủ là một căn nhà có gác lửng đủ 4 phòng ngủ cho 2 thế hệ: Hai vợ chồng và 3 người con nơi làng quê yên bình.
Phòng khách rộng rãi và có sự liên thông với không gian phòng ăn và bếp.
Mặt bằng tầng 1 cho thấy sự phân bổ vị trí khá thông minh của kiến trúc sư, do chiều sâu lớn nên việc tách đôi 4 phòng ngủ cho 2 tầng trở nên hợp lý.
Phòng khách kết hợp phòng ăn và bếp sâu về phía bên trong, màu sắc nhã nhặn, kết hợp chất liệu gỗ sồi trong đồ nội thất như bàn ăn, tủ bếp, bàn tiếp khách, cầu thang và đá ốp đen trắng của Ý khiến căn phòng vừa ấm áp, vừa sang trọng.
Phòng khách liên thông phòng bếp và bàn ăn tưởng chừng như không gian bị thu hẹp nhưng cửa kính sát mặt sàn nhìn ra sân vườn lại là nước đi khá hay không thể phủ nhận khiến không gian vừa rộng rãi, vừa ngập tràn ánh nắng tự nhiên.
Tủ bếp đầy đủ công năng và tiện lợi.
Tủ bếp có kết hợp quầy bar mang tới sự sang trọng cho căn nhà.
Sàn nhà được ốp đá họa tiết xám trắng đi cùng thảm hợp tone màu của căn phòng nên không để căn phòng bị rối, vật dụng và tranh treo tường cũng được KTS tối giản để không gian không trở nên quá bí bức.
Phòng ngủ master với thiết kế hiện đại, mở lối đi dẫn thẳng ra sân trước nhà.
Phòng ngủ Master và phòng ngủ con trai lớn thể hiện sự cá tính, tone màu thiên lạnh (xám, trắng, xanh) và sự kết hợp ăn ý với nội thất vừa đủ để tôn lên mắt thẩm mỹ của chủ nhà.
Phòng ngủ con trai lớn mang màu sắc tối, thiết kế đơn giản nhưng vẫn tạo ra nét độc đáo riêng.
Góc nhìn từ gác lửng xuống tầng 1.
Phòng ngủ của con gái và con trai nhỏ lại tinh nghịch và pha chút dễ thương. Tone pastel nhẹ nhàng, hay như phòng của con trai nhỏ thiết kế theo kiểu giường tầng cũng cho thấy sự chăm chút đến từng chi tiết của chủ nhà, tối ưu sự thoải mái trong từng ngóc ngách nhỏ của căn hộ.
Phòng ngủ con trai bé được thiết kế một cách sáng tạo.
Phòng ngủ con gái nhỏ sử dụng tone màu hồng nữ tính và đáng yêu.
Nhà vệ sinh chung của căn nhà đơn giản và tiện lợi.
Sân vườn ốp gỗ nhựa được trang trí với bàn và sofa dài màu xanh trắng cũng là điểm nhấn của căn nhà, thích hợp cho một buổi sáng thảnh thơi nhâm nhi tách trà xanh nóng cùng quyển sách đang đọc dở.
Sân vườn rộng rãi tràn ngập cây xanh mang lại sinh khí cho căn nhà.
Báo giá sơ bộ.
Hy vọng với phương án bố trí này sẽ đáp ứng được tiện nghi cũng như nhu cầu sinh hoạt của bạn và gia đình.












